Opis ogłoszenia
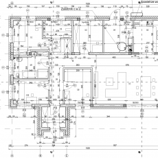
Oferta obejmuje pomoc (korepetycje) przy realizacji rysunków architektoniczno-budowlanych dla Studentów wydziałów Budownictwa oraz Architektury w następującym zakresie:
- rysunki elewacji
- rzuty kondygnacji
- przekroje pionowe
- rysunki więźby dachowej
- rysunki stropów
- rzut dachu
- detale architektoniczne
Cena ustalana jest indywidualnie na podstawie przesłanego tematu i zakresu rysunków.
Zakres lekcji
Studia
Miejsce lekcji
Dowolne
Napisz do użytkownika
Ostatnie opinie
Użytkownik nie otrzymał jeszcze żadnej opinii.


Wyślij wiadomość